Heusden

Breestraat 12

Woonoppervlakte 183M²   Oppervlakte 141M²   Kamers 5   Oppervlakte 4 € 1.150.000,-

Een instapklaar herenhuis met eigen garage in de vesting van Heusden.

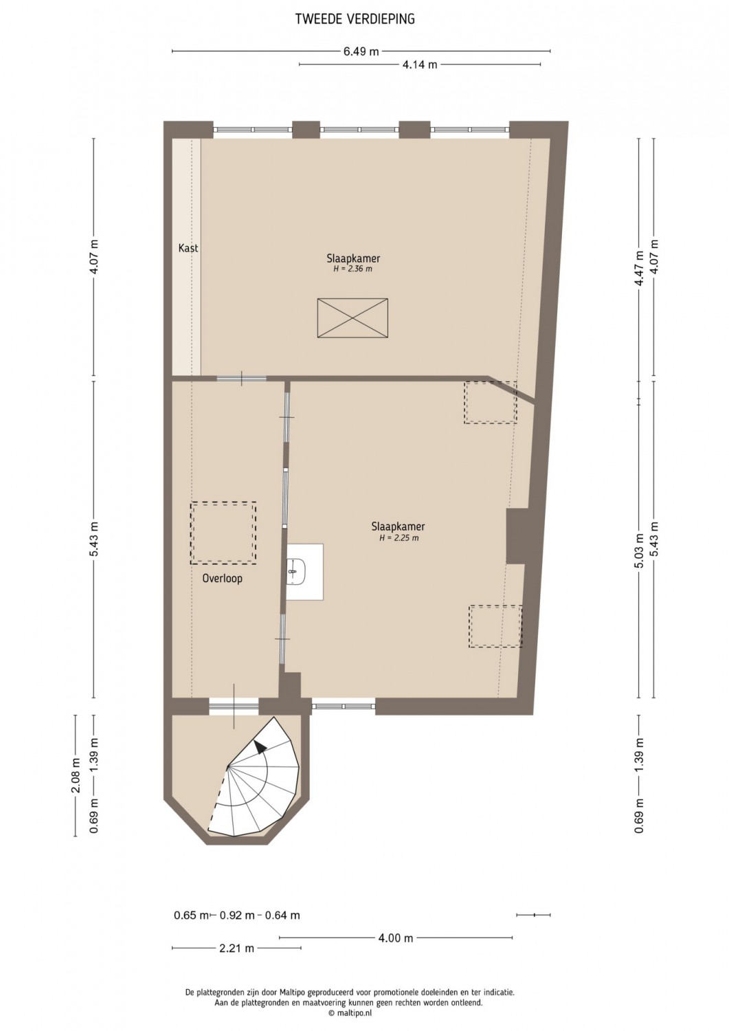
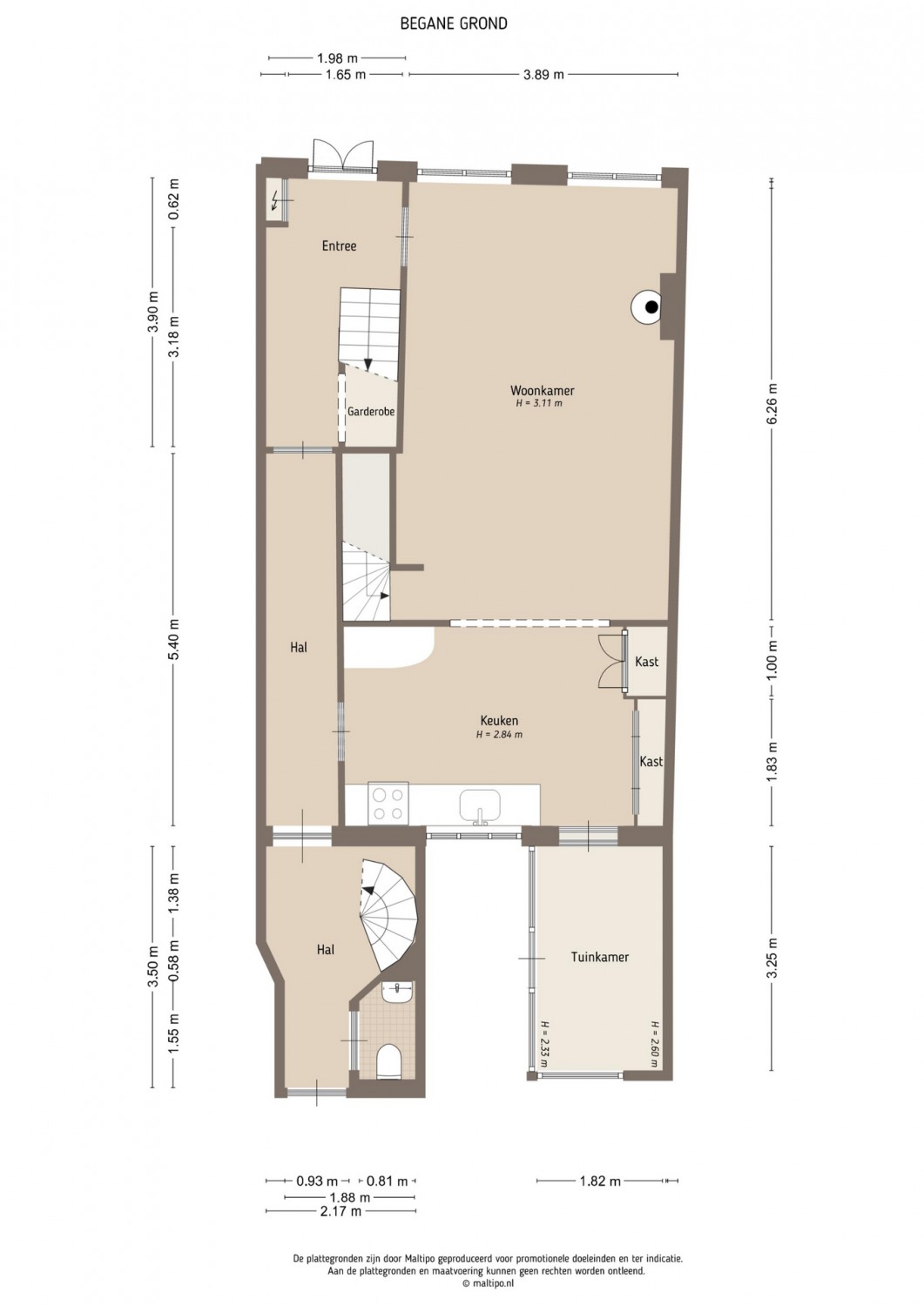
Stap binnen in het herenhuis ‘In de Sonne’, een rijksmonument uit 1614 met een rijke geschiedenis die teruggaat tot de tijd dat het pand nog ‘In de Zwaen’ heette en vermoedelijk als herberg diende. Dit rijksmonument combineert vierhonderd jaar geschiedenis met modern wooncomfort en is uitstekend onderhouden en instapklaar. Het werd in 2019 gedurende zeven maanden volledig gerenoveerd. De woning beslaat circa 183 m² woonoppervlak verdeeld over drie verdiepingen, met een sfeervolle woonkamer voorzien van een houten schouw en houtkachel, een open keuken met hoogwaardige apparatuur en een lichte serre die uitkijkt op de omsloten tuin. De achtergevel met IJsselstenen en traptoren is een echte eyecatcher. De vijfhoekige traptoren verbindt de verdiepingen en benadrukt de unieke architectuur van het pand. Verder beschikt het huis over drie slaapkamers (mogelijkheid tot vier), een badkamer met natuurstenen elementen, een gewelfde wijnkelder en een eigen garage met parkeerplek, een zeldzaamheid binnen de vesting. Vanuit de tuin en het huis heeft u een fraai zicht op de imposante Catharijnekerk.

Ruimte om te leven en te creëren

De kamers bieden volop mogelijkheden: een slaapkamer die eenvoudig in tweeën te splitsen is, een aparte wasruimte en een zolder voor extra bergruimte. De garage met bergzolder, bereikbaar via het rustige Kerkstraatje, voegt een praktische waarde toe aan dit historische woonhuis.

Wonen binnen de vesting van Heusden

Gelegen in een van de mooiste straten van de beschermde vesting Heusden biedt dit huis een unieke verbinding met het verleden. Karakter en comfort zorgen hier voor een comfortabele woonplek.





Download het magazine met meer foto's, video, uitgebreide beschrijving, plattegronden en maatvoering.

Heeft u interesse in deze woning?
Neem dan contact op.

Yachts

Het verzorgen van een unieke beleving: daarin vinden De Landerije en Bekkers Yachts elkaar. Want net als De Landerije staat Bekkers Yachts voor smaak...


Bekijk deze partner

Heusden

Als u Heusden ooit bezocht, was u vast onder de indruk van deze prachtige vestingstad. Volledig gerestaureerd. Een mooie plaats voor een dagje uit, maar zeker ook om te wonen in de eeuwenoude stadswoningen en monumenten.

Bekijk

Altena Bommelerwaard

Niet voor niets worden deze naast elkaar liggende regio’s het Riviereiland genoemd: de Bommelerwaard en het Land van Altena liggen precies tussen de Maas en de Waal. Een prachtig stukje Nederland waar rust, ruimte, historie en cultuur samenkomen!

Bekijk