Hippolytushoef

Kerkplein 25

Woonoppervlakte 152M²   Oppervlakte 195M²   Kamers 5   Oppervlakte 4 € 495.000,-

Karakteristiek woonhuis in het nostalgische Hippolytushoef.

Midden in het nostalgische hart van Hippolytushoef, aan het karaktervolle Kerkplein, staat dit monumentale en charmante huis dat meteen de aandacht trekt. Het huis werd gebouwd in 1849, de periode dat Hippo bekend stond als 'Klein Parijs'. Deze bijnaam dankte het dorp aan het bruisende uitgaansleven, de vele cafés en de drukke kermisperiodes, die deden denken aan de levendigheid van de Franse hoofdstad. Hoewel de hoeveelheid cafés in de loop van de jaren '60 van de vorige eeuw sterk afnam, blijft de herinnering aan de reputatie als 'Klein Parijs' levendig in de geschiedenis van het voormalige eiland Wieringen. Zo’n plek vol sfeer en historie komt maar zelden voorbij. Het vrijstaande huis heeft onder andere vier slaapkamers en een tuin met berging en overkapping. Het monumentale huis kreeg door de jaren heen een complete modernisering zonder authenticiteit te verliezen. Op de begane grond vind je de eerste slaapkamer, terwijl de verdieping ruimte biedt aan nog eens drie fijne slaapkamers en een riante badkamer. De slaapkamers aan de voorzijde verrassen met originele details zoals een ouderwetse goederendeur, een bedstede en zichtbare balken. Alles in dit huis klopt: de kleuren, de afwerking en de sfeer. Een absoluut unieke kans om te wonen op een plek waar historie en hedendaags gemak perfect samenkomen. Naast de woning ligt een fraai aangelegde tuin met sierbestrating, een tuinhuis en volop privacy. Een heerlijke buitenruimte om in alle rust te genieten.

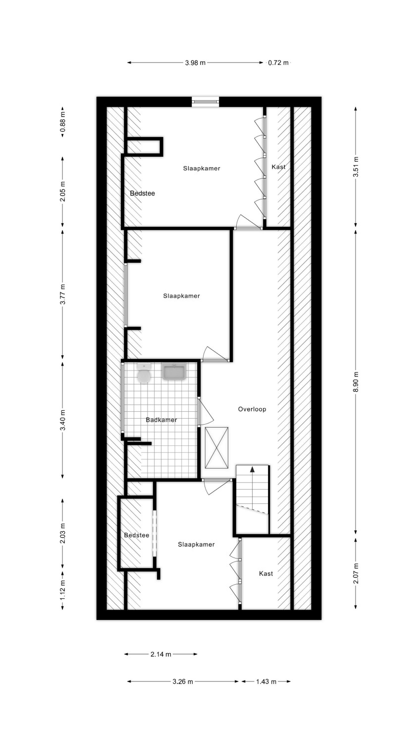
Indeling

Entree, toilet en vaste trap naar de eerste verdieping. De woonkamer met tuindeur straalt sfeer uit dankzij de houten vloerdelen en het balkenplafond. achterin de open keuken met een hoekopstelling voorzien van een achtpits gaskookplaat, vier ovens, afzuigkap, vaatwasser, koelkast en een praktisch werkeiland. Aansluitend komt u in de bijkeuken met wasmachineaansluiting, cv-ketel en een tuindeur. De eerste slaapkamer is gesitueerd op de begane grond. Middels de vaste trap bereikt u de overloop met twee dakramen die zorgen voor prettig daglicht. De tweede slaapkamer heeft een kastenwand, een hoog plafond en een nostalgische goederendeur. De badkamer voelt ruim en comfortabel dankzij de dakkapel en vloerverwarming. De badkamer is ingericht met een wandcloset, dubbele wastafel en dubbele inloopdouche. De derde slaapkamer heeft een dakkapel en een kastenwand. Ook de vierde slaapkamer heeft een kastenwand. Hier ook een hoog plafond en een karakteristieke goederendeur. Een vlizotrap geeft toegang tot de praktische bergzolder. De tuin ligt op het westen, dus u geniet hier volop van de middag- en avondzon. Onder de overkapping zit u heerlijk beschut. De tuinberging met elektra is de plek voor fietsen, gereedschap of hobbyspullen.

Hippolytushoef

Hippolytushoef is het levendige hart van Wieringen, een voormalig eiland met een rijke en eigenzinnige geschiedenis. Ooit omringd door de Zuiderzee leefden de Wieringers hier eeuwenlang van visserij en landbouw, met een sterke gemeenschapszin die vandaag nog voelbaar is. Na de inpoldering bleef het eilandkarakter bewaard: authentiek, trots en eigenwijs. Hippolytushoef combineert deze historie met het comfort van nu, met goede voorzieningen, winkels en scholen binnen handbereik. De rust, ruimte en weidse uitzichten maken het wonen hier bijzonder aangenaam. Tegelijk ligt de Noordkop met steden en stranden verrassend dichtbij. Wie kiest voor Hippolytushoef, kiest voor karakter, geschiedenis en kwaliteit van leven. Een unieke plek waar verleden en toekomst harmonieus samenkomen.





Neem contact op met de makelaar voor meer informatie.

Heeft u interesse in deze woning?
Neem dan contact op.