Vianen

Molenstraat 55

Woonoppervlakte 408M²   Oppervlakte 4.742M²   Kamers 11   Oppervlakte 7 € 2.850.000,-

Kasteelvilla met schitterende parktuin aan de stadsmuur van Vianen. Buiten Wonen in de vesting!

Een eeuwenoude kasteelvilla, dat doet een eerste aanblik vermoeden. Maar niets is minder waar. Deze fenomenale villa is namelijk ‘pas’ in 1969 gebouwd door een gerenommeerde bouwondernemer. Met kennis en gebruikmaking van historische bouwstijlen en bouwmaterialen realiseert hij een ronduit unieke en grootse kasteelvilla. Zijn eigen droomkasteel. Niet alleen de bouw is uitzonderlijk; hetzelfde geldt voor de locatie, binnen de vesting, tegen de eeuwenoude stadsmuren en langs de oude stadsgrachten van Vianen. En dat op slechts 18 km afstand van Utrecht. En er is nog meer waardoor deze villa het predicaat uniek en magnifiek verdient. Wandel maar eens door de geweldige parktuin die in alles de grandeur van oude adel uitademt. Maar dan wel met het comfort en de faciliteiten van nu waaronder een zwembad en tuinkamer. Een waar eldorado. Allereerst voor de bewoners, maar zeker ook voor de vogels die de tuin over de stadsmuur maar al te graag bezoeken.

Historisch wonen met alle denkbare comfort

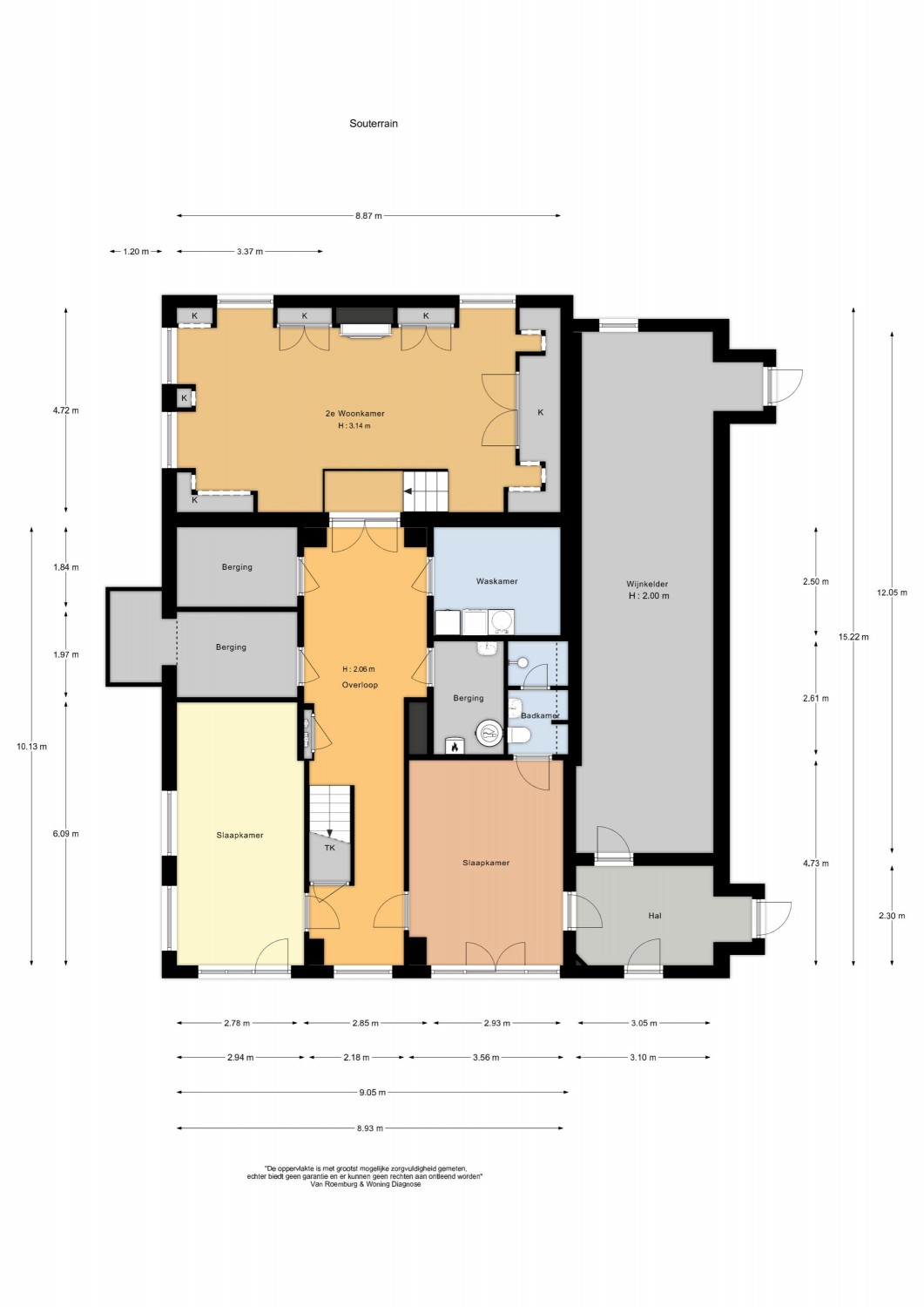
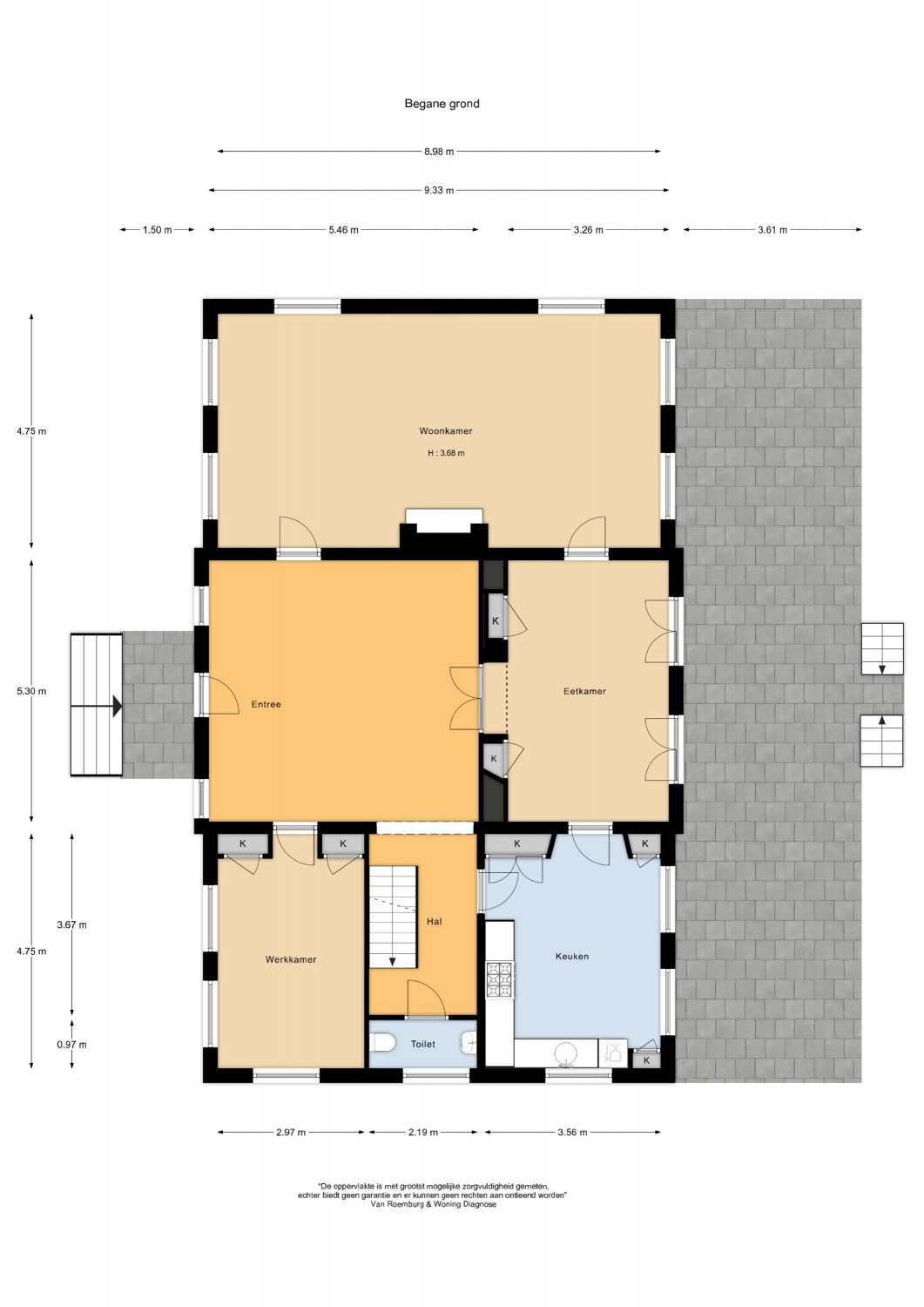
De grootse bordestrap aan de voorzijde is de veelbelovende entree van deze villa. En beloftes worden waargemaakt, dat ziet u direct als u de riante entreehal met marmeren vloer betreedt. De parterre (bel-etage) biedt ruimte aan een vijftal vertrekken met een accent op de klassieke woonkamer met prachtige raampartijen en gashaard. Eveneens fraai is de eetkamer, met daarnaast de separate keuken, met sierplafond en rijke lambrisering. Tweemaal openslaande deuren zorgen voor toegang tot een uniek terras tegen de historische stadsmuur. Het uitzicht is fenomenaal. Ook de werkkamer aan de voorzijde is een juweel en de eerste verdieping biedt alle ruimte met vijf slaapkamers en twee complete badkamers. Daarbij heeft u de beschikking over een souterrain, een complete woning met woonkamer (herenkamer), twee slaapkamers, een badkamer en diverse bergingen. Tegen de stadsmuur is daarbij op schitterende wijze een riante wijnkelder gerealiseerd die zowel vanuit het souterrain als de tuin is te bereiken.

Parktuin met talrijke voorzieningen

In hartje Vianen en dichtbij Utrecht biedt deze plek u alle rust en ruimte. Allereerst is er de parktuin met vijver die met zorg en liefde is ontworpen en aangelegd, en tot volle wasdom is gekomen. De grootte van de tuin (4.742 m²) creëert ongekende mogelijkheden die overigens ten volle zijn benut. Zoals de prachtige tuinkamer met overdekt terras en toilet met onder meer zicht op de tuin, het kinderspeeltuintje en de vijver met fontein. Het prieeltje met rozen, de leiperen langs de stadswal, de tuinkas en de kippenren. En last but not least het zwembad met veranda.





Download het magazine met meer foto's, video, uitgebreide beschrijving, plattegronden en maatvoering.

Heeft u interesse in deze woning?
Neem dan contact op.

Het Groene Hart

Landelijk wonen, maar toch dichtbij de grote steden? In Het Groene Hart ervaart u het beste van twee werelden. Tussen de weilanden met bloemen en vaarten, oude molens en stille plassen geniet u van rust en ruimte, terwijl de dynamiek van de Randstad nooit ver weg is.

Bekijk