Joure

Midstraat 24

Woonoppervlakte 416M²   Oppervlakte 482M²   Kamers 8   Oppervlakte 5 € 1.190.000,-

Het pronkstuk van Joure; een monumentale stadsvilla geschikt voor wonen en/of ondernemen.

In het bruisende centrum van Joure staat dit paradepaardje: het voormalige postkantoor uit 1904, ontworpen door architect C.H. Peters (Rijksbouwmeester van Financiën). Met circa 470 m² woon- en werkruimte, een zonnige tuin op het zuiden en twee huisnummers, combineert dit meesterwerk van neogotische en neo-renaissance architectuur historische grandeur met moderne functionaliteit. Glas-in-loodramen, marmeren vloeren, rijk gedetailleerd metselwerk en imposante gevelornamenten maken dit pand tot het mooiste en meest representatieve object van Joure. Een unieke kans voor wie wonen en werken wil verbinden in een uitzonderlijke setting.

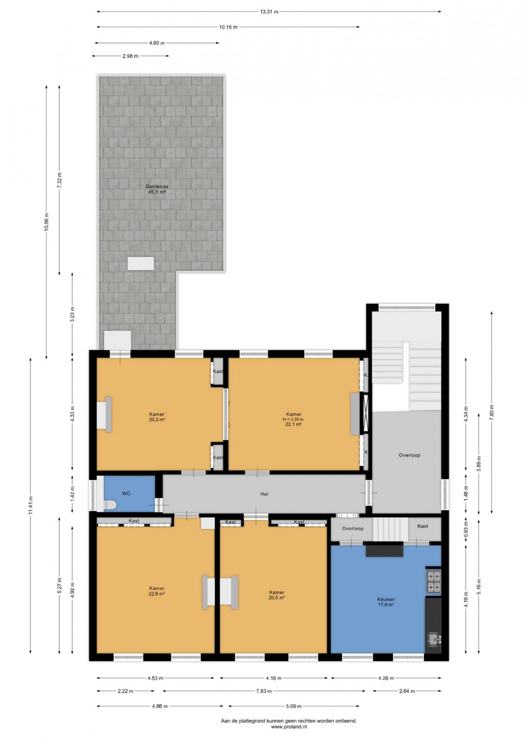
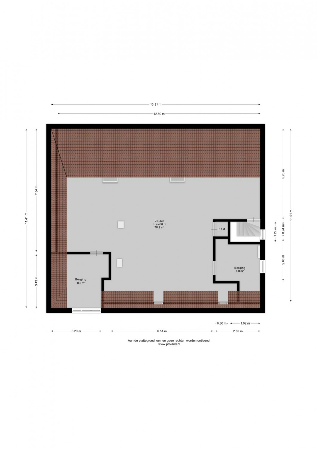
Flexibele indeling met luxe en monumentale allure

Dit pand ademt karakter en biedt een grote flexibiliteit. De begane grond is uitgerust met ruime multifunctionele ruimtes, spreekkamers en een professionele keuken. Terwijl de eerste verdieping met kamers en suite, een keuken en royaal dakterras een luxueuze woonervaring biedt. De hoge zolderverdieping met monumentale houten spanten leent zich perfect voor een loft, atelier of extra kantoor. Authentieke details zoals het originele troggewelf, marmeren schouwen, ornamentale plafonds en fraaie schuifdeuren accentueren de exclusieve uitstraling. Recent is het pand zorgvuldig gerenoveerd; dakisolatie, vloeren, plafonds en kozijnen zijn vernieuwd met behoud van monumentale elementen. Dankzij reeds toegekende, en dus beschikbare, SUMO- en SIM-subsidies (ruim € 170.000!) en de mogelijkheid van laagrentende restauratie- en duurzaamheidsleningen is investeren in dit pand zowel inspirerend als financieel aantrekkelijk.

Wonen en ondernemen in het bruisende Joure

Gelegen aan de winkel- en horecastraat van Joure, combineert deze stadsvilla een centrale ligging met rust, privacy en allure. Joure, een historisch Fries regiocentrum met circa 13.000 inwoners, biedt een compleet voorzieningenniveau met winkels, horeca, scholen en sportfaciliteiten. De gunstige ligging nabij de A6 en A7 maakt steden als Heerenveen, Sneek en de Randstad binnen een uur bereikbaar. Omringd door de Friese Meren, bossen en golfbanen biedt dit monument niet alleen een unieke woon- en werkomgeving, maar ook een exclusieve levensstijl waarin historie, luxe en functionaliteit samenkomen.





Neem voor uitgebreide informatie over Midstraat 24-26 te Joure contact op met de makelaar.

Heeft u interesse in deze woning?
Neem dan contact op.