Luttelgeest

Kerkstraat 9

Woonoppervlakte 191M²   Oppervlakte 512M²   Kamers 5   Oppervlakte 4 € 750.500,-

Divine Living - Vijf luxe woningen in een voormalige kerk (Apsiswoning).

Royaal wonen in een groene, rustige omgeving? In het charmante Luttelgeest wordt een voormalige kerk getransformeerd tot een exclusief wooncomplex met vijf ruime herenhuizen. Een unieke combinatie van historie, modern wooncomfort en volop ruimte voor persoonlijke invulling. Want de woningen worden Casco+ opgeleverd, dus u kunt uw woning volledig naar eigen smaak (laten) afbouwen.

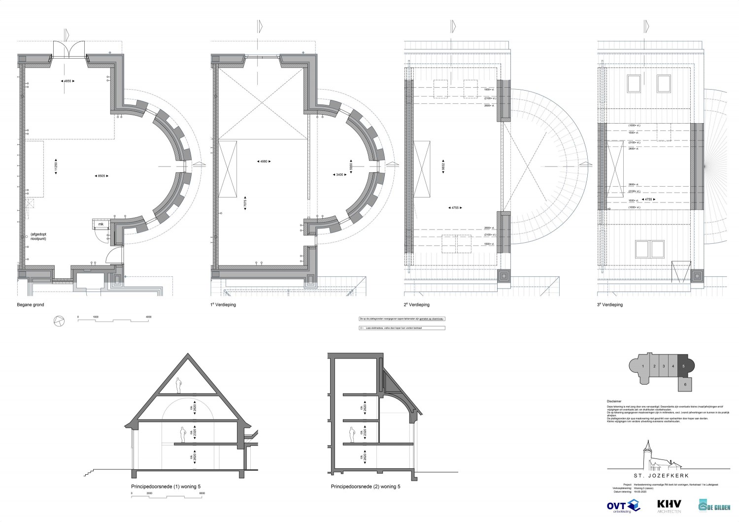
Apsiswoning

De Landerije biedt de twee meest bijzondere woningen in het project aan; De Apsiswoning en Torenwoning. De Apsiswoning heeft een gebruiksoppervlakte van circa 191 m2 en een perceel van zo'n 512 m2, inclusief twee eigen parkeerplaatsen. De inhoud telt circa 834 m3. De Apsiswoning is gesitueerd in de achterzijde van de kerk en wordt gekenmerkt door de halfronde achtergevel; de apsis. De riante woning heeft maar liefst vier verdiepingen waarin een fantastische indeling is te realiseren. De koopsom Casco+ bedraagt € 450.500 von. De totaalsom na afbouw zal circa € 750.500 von bedragen. U kunt de afbouw via de ontwikkelaar laten verzorgen, maar daarin bent u vrij (prijzen onder voorbehoud). Op de plattegronden ziet u de situatie Casco+ alsmede mogelijke indelingen na afbouw.

Luttelgeest

Luttelgeest biedt diverse voorzieningen, waaronder een basisschool, kapper, boerderijwinkels en kent verschillende actieve (sport)verenigingen. Voor horecagelegenheden en een grote supermarkt kunnen inwoners terecht in het 4,5 km verderop gelegen Marknesse of in de gemeentehoofdstad Emmeloord. Maar Nationaal Park Weerribben, de Friese Meren en bijvoorbeeld Lemmer liggen dichtbij. Lemmer is een sfeervol en levendig dorp aan het IJsselmeer, bekend om zijn gezellige centrum, strand en jachthaven. Dankzij de gunstige ligging ten opzichte van uitvalswegen richting Zwolle, en nabij de A6 zijn ook steden zoals Heerenveen, Groningen, Lelystad, Almere en Amsterdam goed bereikbaar.





Neem voor uitgebreidere informatie omtrent dit herbestemmingsplan gerust contact met ons op!

Heeft u interesse in deze woning?
Neem dan contact op.