Leerdam

Levanger 12

Woonoppervlakte 229M²   Oppervlakte 726M²   Kamers 8   Oppervlakte 6 € 1.395.000,-

Riante villa op prachtige locatie in Leerdam-Varsseveld, direct aan de Linge.

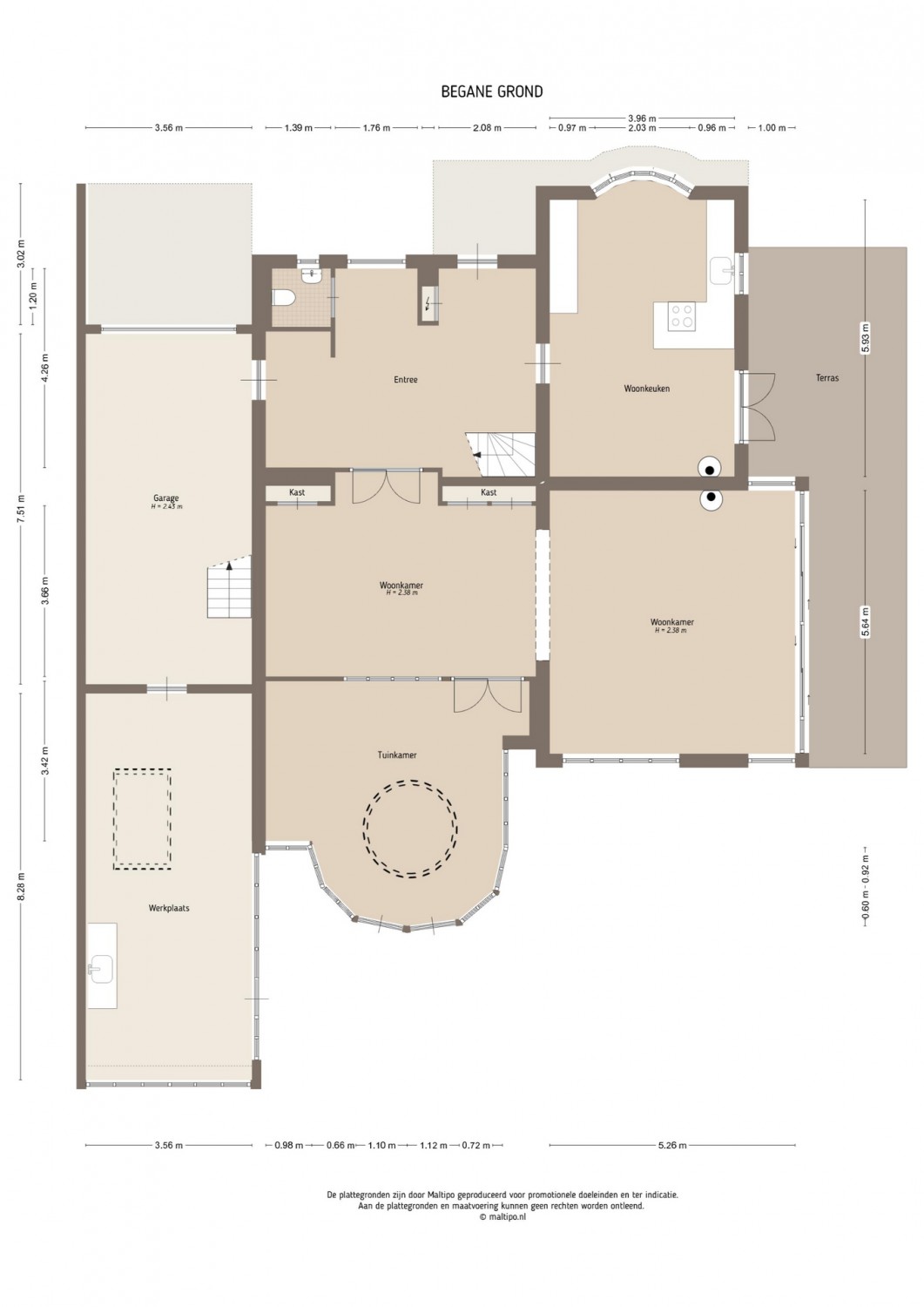
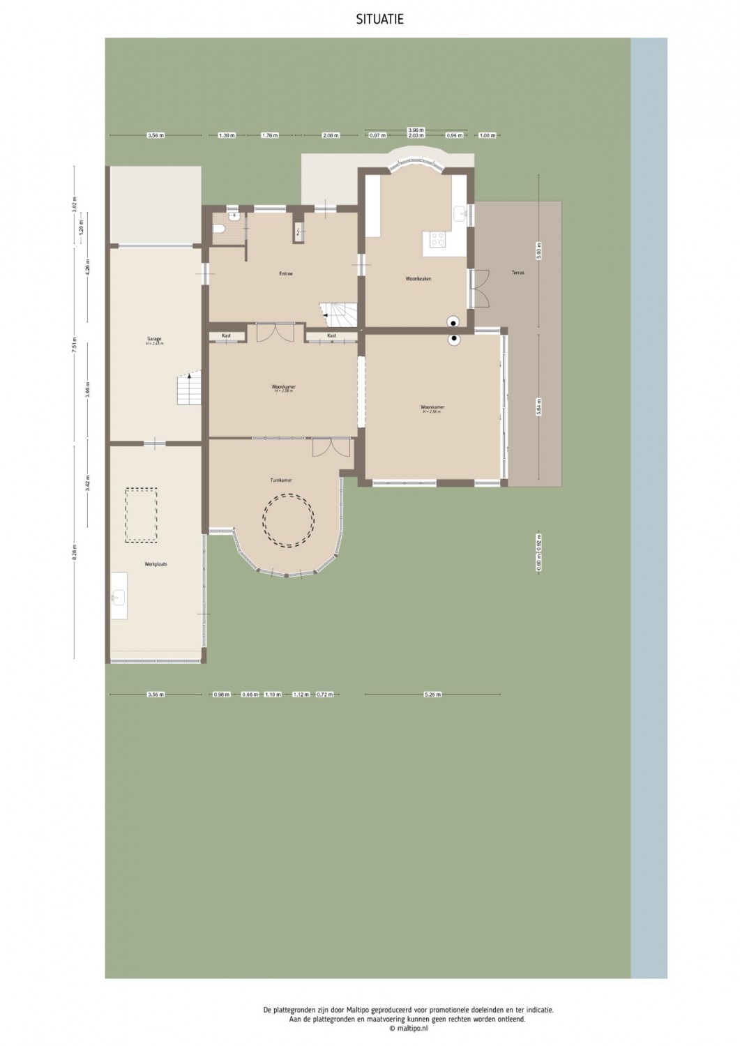
Welkom bij deze riante villa aan de Linge, een unieke plek in het gewilde Leerdam-Varsseveld. De ligging aan Het Balkengat en de Linge biedt volop mogelijkheden voor watersport en recreatie. In het verleden was de Linge hier het transportmiddel voor de balken ten behoeve van houthandel Varsseveld. De tuin van de villa grenst direct aan het water en beschikt over een eigen aanlegplaats voor een boot. Dit huis, verbouwd in 2020, ademt warmte en robuustheid uit. Over drie woonlagen biedt het ruimte, karakter en een uitnodigende sfeer. Twee houtkachels zorgen voor een knusse ambiance. Buiten wacht een verzorgde tuin met groene borders en een ruim vlonderterras, ideaal om te ontspannen of te genieten van gezellige momenten. Vanuit de woonkamer en de woonkeuken geniet u van een vrij uitzicht over het water. De overdekte veranda van duurzaam Ipé-hout ligt op het zuiden en biedt een fijne plek om buiten te zitten, terwijl het water rustig langs uw tuin kabbelt. Deze locatie combineert de rust van het water met de nabijheid van het centrum van Leerdam en de gunstige ligging tussen Utrecht, ’s-Hertogenbosch en Rotterdam. Het is zonder twijfel het mooiste gesitueerde huis in de wijk Varsseveld met directe toegang tot de Linge, maar een afstand die prettige privacy biedt.

Ruimte voor wonen en meer

Zes slaapkamers en meerdere badkamers bieden volop mogelijkheden voor gezin en gasten. De hobbyruimte en berging zijn flexibel in te richten, denk aan een atelier, gym of extra leefruimte. Een lift verbindt de verdiepingen, waardoor het huis ook meegroeit met veranderende wensen.

Unieke ligging aan de Linge

Rustig gelegen aan een van de karakteristieke balkengaten, met het centrum van Leerdam op loopafstand en een groene omgeving die de rivier omarmt.





Download het magazine met meer foto's, video, uitgebreide beschrijving, plattegronden en maatvoering.

Heeft u interesse in deze woning?
Neem dan contact op.

Leerdam

Niet voor niets is Leerdam een gewilde woonplaats. Een historische binnenstad, een gezellig winkelcentrum, een haven aan de Linge, een rijke glashistorie en de mooiste huizen. In Leerdam vindt u het allemaal.

Bekijk

Betuwe

De inwoners van de Betuwe zijn niet voor niets trots op hun streek! Cultuur, historie en natuur komen hier samen. In de Betuwe woont u midden tussen de vele fruitboomgaarden, karakteristieke dorpjes en talloze historische forten en kastelen.

Bekijk